Verkocht onder voorbehoud:Antwerpsestraatweg 166, 4615 AX Bergen op Zoom - Foto
Verkocht onder voorbehoud
+36

Antwerpsestraatweg 166 4615 AX Bergen op Zoom € 329.500,- k.k.

  • Woonhuis
  • 4 kamers
  • 3 slaapkamers
  • 1 badkamers
  • Bouwjaar 1915
  • 184 m² perceeloppervlakte
  • 96 m² gebruiksoppervlakte
  • E Energielabel E

Beschrijving

Welkom op de Antwerpsestraatweg 166 Bergen op Zoom! Je nieuwe thuis wacht op je

Ben jij op zoek naar dat ene huis waar je meteen een goed gevoel bij krijgt? Zo eentje waarbij je in de zonnige achtertuin een kop koffie drinkt en het gevoel hebt dat alles klopt? Dan hebben we goed nieuws, want dit heerlijke huis in de gezellige wijk Zeekant – aan de Antwerpsestraatweg 166 – staat te popelen om nieuwe bewoners te verwelkomen. Of je nu starter bent, voor een frisse start gaat als herstarter, of met je gezin wilt neerstrijken: This could be it!

Zeg gedag tegen gehaaste ochtendroutines en hallo tegen puur genot! Deze woning heeft een gloednieuwe badkamer die zo van de cover van een woonmagazine lijkt te komen. We hebben het over een luxe wellness-badkamer met een dubbele douche – geen filevorming meer ’s ochtends. Strakke vormgeving, stijlvolle materialen en helemaal klaar om elke dag als een spa-dag te laten voelen. En het apart gelegen toilet op de verdieping? Dat is niet alleen handig, maar ook gewoon lekker praktisch.

Aan de kookliefhebbers is ook gedacht: de keuken is fris, eigentijds en piekfijn uitgerust met een supersterk composiet aanrechtblad. Ideaal voor gezellige kookavonden, samen pizza’s bakken met de kids of uitgebreid borrelen met vrienden. De verbinding tussen keuken en woonkamer maakt dat je altijd lekker bij de gezelligheid betrokken blijft, zelfs als de pannen op het vuur staan.

Het is een echt familiehuis met 3 slaapkamers waarvan je misschien wel een als werkkamer / waskamer of walk-in-closet gaat gebruiken. Dus mocht je tijd over hebben dat kan het shoppen beginnen om de kamer te vullen. De twee grote slaapkamers zijn perfect om een gezin te starten en wil je uitbreiden? Doe dan net als je buren en realiseer een volledige verdieping erbij. Zo zie je maar het is een huis waar je in kan groeien.

Loop je met ons mee naar buiten? Wát een tuin! Met een diepte van maar liefst 18 meter heb je hier alle ruimte om grootse plannen uit te voeren. Een trampoline voor de kids, moestuintjes voor de groene vingers, een loungeset om tot diep in de avond te borrelen… Zeg nou zelf, zo’n diepe tuin vind je niet overal! En die ruime voortuin zorgt meteen voor een warm welkom.

Winkels? Die liggen letterlijk om de hoek! Van je verse croissantjes tot je dagelijkse boodschappen: alles is binnen handbereik. Het levendige winkelcentrum zorgt ervoor dat je nooit misgrijpt. Toch woon je hier heerlijk rustig; even de tuin in, deur dicht, leunstoeltje achterover en je hebt een oase van privacy.

Denk groot! Een zonnige ochtend in de voortuin, barbecueën met vrienden in de diepe achtertuin, ontspannen na een lange werkdag in je eigen wellnessbadkamer. Hier zie je jezelf toch helemaal zitten? Deze woning biedt alle ruimte en comfort om te genieten, te groeien, samen herinneringen te maken én weer met frisse energie aan een nieuwe dag te beginnen.

Wacht niet te lang, want zulke strakke gezinswoningen mét topbadkamer en een tuin van dit formaat vliegen zo de deur uit. Laten we eerlijk zijn: sommige kansen moet je gewoon grijpen. Dus waar wacht je nog op? Bel, mail of app voor een bezichtiging en kom zelf ervaren hoe het voelt om hier thuis te zijn.
Tot snel op de Antwerpsestraatweg 166 in Bergen op Zoom – jouw nieuwe plek onder de zon!

Pluspunten:
+ Wellness badkamer!
+ Loopafstand van winkelcentrum!
+ In-stap-klaar!
+ Ruim 18 meter diepe achtertuin!

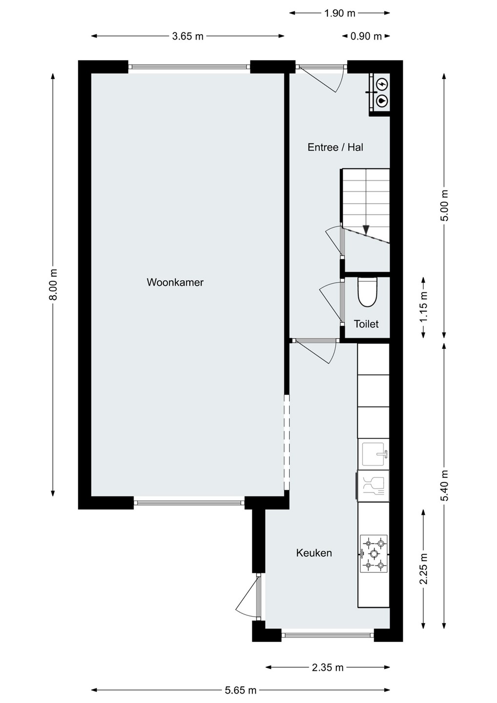
Indeling

Entree / Hal:
De langwerpige hal is een warm welkom van de woning. Er is volop plek om de jassen op te hangen en de schoenen in de trapkast op te bergen. De sfeer van de woning is direct voelbaar met het gezellige behang op één van de wanden. De hal geeft toegang toe de woonkamer/keuken, het toilet de meterkast en de trapopgang.
De ruimte is afgewerkt met laminaatvloer, gestuukte wanden en een gipsplaten plafond.

Woonkamer:
De ideale doorzonwoonkamer met een lengte van ruim 8 meter. Een royale zit-en eethoek plaats je hier met gemak. Het is een opvallend lichte ruimte door de aanwezige raampartijen aan de voor- en achterzijde. De woonkamer staat in een semi-open verbindingen met de keuken. Zo kun je de kok makkelijk vergezellen tijdens het koken. De kamer is doormiddel van de aanwezige airco te verwarmen of te koelen tijdens de hete zomeravonden. Hoe fijn is dat!
De ruimte is afgewerkt met een laminaatvloer, gestuukte wanden en een gipsplaten plafond.

Keuken:
De semi-open keuken is net 4 jaar oud en is van alle gemakken voorzien. De super strakke keuken met composietwerkblad heeft veel werkruimte en opbergmogelijkheden. De (spat)tegeltjes maken de keuken stoer en eigentijds. Het daglicht kan goed binnenstromen door het flinke raam, waardoor je ook zicht hebt op de tuin. Handig met spelende kinderen. Via de keuken is er toegang tot de achtertuin.
De sfeervolle keuken is onder andere voorzien van:
+ 4-pits inductiekookplaat
+ Afzuigkap
+ Enkele spoelbak
+ Koel/vriescombinatie
+ Stoom/heteluchtoven
+ Vaatwasser
De ruimte is afgewerkt met een tegelvloer, gestuukte wanden en een gipsplaten plafond.

Toilet:
Keurig en moderne toiletruimte met een leuk nisje voor een plantje of luchtverfrisser. Een moderne en warme uitstraling. Het toilet is voorzien van een wandcloset en mechanische ventilatie.
De ruimte is afgewerkt met een tegelvloer, betegelde wanden en een gestuukt plafond.

Eerste verdieping

Overloop:
Prima overloop die toegang geeft tot de slaapkamers en het aparte toilet. De originele details zoals de paneeldeuren zijn behouden wat de sfeer alleen maar ten goed komt. Extra praktisch is de nis waar je het een en ander in kunt opbergen.
De ruimte is afgewerkt met een laminaatvloer, gestuukte wanden en een gipsplaten plafond.

Slaapkamer 1:
Aan de achterzijde van de woning treffen we de hoofdslaapkamer van ruim 15m2! Een heerlijke kamer waar je met gemak een royaal tweepersoonsbed in plaats en kledingkasten. Voor de super hete zomerdagen is er een airco die overigens ook kan verwarmen. Scheelt weer in de kosten. Via deze kamer is er toegang tot de badkamer.
De ruimte is afgewerkt met een laminaatvloer, gestuukte wanden en een kunststof panelen plafond.

Slaapkamer 2:
Ruime slaapkamer van circa 11 m2, welke aan de voorzijde van de woning is gelegen. Er is voldoende ruimte voor het plaatsen van een kledingkast, bed en bureau en je houdt dan nog voldoende speelruimte over.
De ruimte is afgewerkt met een laminaatvloer, gestuukte wanden en een gipsplaten plafond.

Slaapkamer 3:
De multifunctionele kamer van de woning met ruim 5m2 woonoppervlakte. De kamer is aan de voorzijde gelegen en dient momenteel als waskamer. Voor de thuiswerkers onder ons zou je hier ook een werkkamer kunnen creëren. Zo houdt je werk en privé makkelijk gescheiden. Of voor de shoppers: een waskamer met walk-in-closet. Het kan allemaal.
De ruimte is afgewerkt met een laminaatvloer, gestuukte wanden en een gestuukt plafond.

Badkamer:
De blikvanger van het huis! Het lijkt haast een wellnessruimte om samen van te genieten. De badkamer is via de hoofdslaapkamer te bereiken via een (smoke)glazen deur. Aan alle details is gedacht, zoals de zwarte kranen die mooi uit de muur komen, de warme kleurstelling en de design radiator. Een fijne ruimte om je in op te frissen.
De recent geplaatste badkamer is onder andere voorzien van:
+ Badkamermeubel met dubbele waskom
+ Inloopdouche met dubbele regendouche
De ruimte is afgewerkt met een tegelvloer, betegelde wanden en een gestuukt plafond.

Toilet:
Het aparte toilet is ook zeker een aanwinst op de verdiepingsvloer. De toiletruimte is in dezelfde warme sfeer afgewerkt als de badkamer, wat het plaatje alleen maar compleet maakt. De toiletruimte is voorzien van een wandcloset en geeft toegang tot de combiketel die netjes uit het zicht is onttrokken.
De ruimte is afgewerkt met een tegelvloer, betegelde wanden en een gestuukt plafond.

Tuin

Voortuin:
De onderhoudsvriendelijke voortuin zorgt niet alleen voor privacy, maar ook voor een mooi aanzicht van de woning. De fietsen kun je zo op eigen terrein stallen.

Achtertuin:
De bijna 18 meter diepe achtertuin is heerlijk op het zonnige zuidwesten gelegen. Als tuinliefhebber weet je wel raadt met deze tuin. Wat dacht je van een leuk speelrek, tramponline of zwembadje voor de kinderen of een overkapping om samen met vrienden in de zomeravonden te geniet van de barbecue. Verbouw je eigen groente en fruit. Het is allemaal mogelijk. De tuin is momenteel onderhoudsarm aangelegd met een sierbestrating en een plantenborder.

Tuinberging:
Over de gehele breedte van de tuin tref je de stenenberging die voorzien is van elektra. Een mooi opslagplek voor de vakantiespullen en kerstversiering. Met ruim 9m2 vloeroppervlakte genoeg ruimte.

Kaart

Kenmerken

Overdracht

Referentienummer
06351
Vraagprijs
€ 329.500,- k.k.
Status
Verkocht onder voorbehoud
Aanvaarding
In overleg
Aangeboden sinds
Vrijdag 9 januari 2026

Bouw

Type object
Woonhuis, eengezinswoning, tussenwoning
Soort bouw
Bestaande bouw
Bouwperiode
1915
Dakbedekking
PVC
Type dak
Platdak
Isolatievormen
Dakisolatie
Dubbel glas

Oppervlaktes en inhoud

Perceeloppervlakte
184 m²
Woonoppervlakte
96 m²
Woonkameroppervlakte
29,2 m²
Keukenoppervlakte
12,15 m²
Inhoud
345 m³
Oppervlakte externe bergruimte
18 m²

Indeling

Aantal bouwlagen
2
Aantal kamers
4 (waarvan 3 slaapkamers)
Aantal badkamers
1 (en 2 aparte toiletten)

Locatie

Ligging
In woonwijk

Tuin

Type
Achtertuin
Hoofdtuin
Ja
Oriëntering
Zuid-west
Staat
Prachtig aangelegd
Tuin 2 - Type
Voortuin
Tuin 2 - Oriëntering
Noord-oost
Tuin 2 - Staat
Prachtig aangelegd

Energieverbruik

Energielabel
E

CV ketel

CV ketel
Remeha
Warmtebron
Gas
Bouwjaar
2023
Combiketel
Ja
Eigendom
Eigendom

Uitrusting

Warm water
CV-ketel
Verwarmingssysteem
Airconditioning
Centrale verwarming
Ventilatie methode
Mechanische ventilatie
Natuurlijke ventilatie
Keukenvoorzieningen
Inbouwapparatuur
Badkamervoorzieningen
Douche
Dubbele wastafel
Inloopdouche
Wastafelmeubel
Heeft airco
Ja
Glasvezelaansluiting aanwezig
Ja
Tuin aanwezig
Ja
Heeft schuur/berging
Ja
Heeft ventilatie
Ja

Kadastrale gegevens

Kadastrale aanduiding
Bergen op Zoom F 4663
Perceeloppervlakte
184 m²
Omvang
Geheel perceel
Eigendomsituatie
Eigen grond

Brochure(s) en overige bijlagen

Brochure - Antwerpsestraatweg 166 Bergen op Zoom.pdf Download