Verkocht onder voorbehoud:Artemislaan 22, 4625 CS Bergen op Zoom - Foto
Verkocht onder voorbehoud
+66

Artemislaan 22 4625 CS Bergen op Zoom € 429.500,- k.k.

  • Woonhuis
  • 6 kamers
  • 5 slaapkamers
  • 1 badkamer
  • Bouwjaar 1972
  • 312 m² perceeloppervlakte
  • 140 m² gebruiksoppervlakte
  • C Energielabel C

Beschrijving

Welkom aan de Artemislaan 22 – Waar wonen nog voelt als thuiskomen!

Ben jij op zoek naar een ruim familiehuis waar je zelf nog helemaal je stempel op kunt drukken? Dan heb je geluk, want deze unieke twee-onder-een-kap woning aan de Artemislaan 22 in het gezellige Nieuw Borgvliet, Bergen op Zoom, staat nu te koop! En let op: dit is geen dertien-in-een-dozijn woning, maar eentje die helemaal door de verkoper zelf is ontworpen. Dat voel je in alles: ruimte, indeling, licht en natuurlijk dat bijzondere uitzicht op De Twee Vrienden – dé molen waar elke Bergenaar trots op is.

Eerst even de feiten op een rij. Dit is een klassiek gezinshuis uit 1972, dus stevige bouw en lekker veel plek voor iedereen. Met een perceel van maar liefst 312 m2 hoef je je over buitenruimte nooit meer zorgen te maken. Zo’n lap grond vind je niet snel meer tegenwoordig! Aan de voorkant kun je je groene vingers laten wapperen in de ruime voortuin – en zelfs een stoepfeestje met de buren organiseren. Maar wacht maar tot je die gigantische achtertuin ziet: 210 m2 puur genieten! Hier bak je ’s ochtends een eitje in de zon, terwijl je kinderen ongedwongen kunnen voetballen, ravotten of hun fantasiewereld uitleven.

Stel je voor: je zit met vrienden te borrelen in de tuin, of gewoon aan de keukentafel, en aan de achterkant kijk je zó uit op de historische molen De Twee Vrienden. Een extra stukje beleving, want het geeft je huis iets magisch. Of het nou zomer is of winter, dit uitzicht raakt eigenlijk nooit ‘gewend’ – eerder blijf je je erover verwonderen.

Met energielabel C is de basis van deze woning al dik in orde qua duurzaamheid. Met een paar zonnepanelen en wat extra isolatie zit in een mum van tijd op een A-label. Voor sommige mensen betekent “woning moderniseren” werk aan de winkel, maar als je een beetje creatief bent, snap je direct de waarde hiervan. Want eerlijk? Je kunt dit huis precies zo maken als jullie willen. Een open keuken met kookeiland en apparatenwand, een gloednieuwe badkamer met ligbad en aparte douche met regendouche en een aparte waskamer voor de wasmachine. Van speelhoek tot thuiswerkplek – de mogelijkheden zijn eindeloos. Pak je kans en geef dit familiehuis met mogelijkheid tot 6 slaapkamers een tweede jeugd, helemaal naar jouw smaak.

Wonen in Nieuw Borgvliet is wonen met het beste van twee werelden. De wijk staat bekend om zijn gemoedelijke sfeer, veel groen, fijne speeltuinen én natuurlijk de uitstekende ligging. Binnen no time fiets of wandel je naar scholen, supermarkten, sportclubs of het stadscentrum van Bergen op Zoom. Er is parkeergelegenheid genoeg, dus bezoek ontvang je gemakkelijk.

Daarover gesproken het extraatje is toch zeker de xl-garage waar je makkelijk een auto in kwijt kunt en nog steeds boordevol bergruimte overhoudt! Al met al heb je hier een woning te pakken met talloze mogelijkheden waar je de komende jaren heerlijk kunt genieten. Plan snel een bezichtiging in en wij laten je de mogelijkheden graag zien! Want voor je weet is dit thuis weer van de markt!

Pluspunten:
+ Royale twee-onder-een-kapwoning!
+ Mogelijkheid tot 6 slaapkamers!
+ Vrijstaande XL-garage!
+ Tuin vol op het zuiden!

Indeling

Entree:
Via de overkapping stap je de ruime en langwerpige hal binnen. Reuze handig is garderobe-nis, waardoor de jassen en schoenen keurig uit het zicht kunnen worden opgehangen. Onder de trap is er voldoende bergruimte. De hal geeft toegang tot de woonkamer, keuken, het toilet en de trapopgang naar de verdiepingsvloeren.
De ruimte is afgewerkt met een tegelvloer, gestuukte wanden en een houten schroten plafond.

Woonkamer:
Lichte en zéér ruime woonkamer. De erker aan de zijkant van de woning zorgt net voor meer lichtinval en uitzicht op de ruime oprit. De woonkamer is dermate van formaat dat er een royale zitgroep en eettafel geplaats kan worden. Er is al een tuindeur aanwezig, maar met een prachtige schuifpui zorg je helemaal dat de woonkamer in verbinding staat met de tuin. De haard zorgt voor warmte en een huiselijke uitstraling.
De ruimte is afgewerkt met een houten parketvloer, gestuukte wanden en een kurkplafond.

Keuken:
De gesloten keuken is royaal van opzet en geeft toegang tot de tuin. Het raam zorgt dat de zonnestralen ook de keuken bereiken wat het geheel extra prettig maakt. De keuken leent zich uitstekend om in een open verbinding te staan met de woonkamer. Wat dacht je van een kookeiland en apparatenwand? Het is allemaal mogelijk met een paar aanpassingen. De huidige Poggenpohl keuken met kunststofwerkblad verkeert - voor zijn leeftijd - nog in goede staat en is voorzien van:
+ 4-pits gasfornuis
+ Afzuigkap
+ Dubbele spoelbak
De ruimte is afgewerkt met een tegelvloer, grotendeels betegelde wanden en een spuitwerk plafond.

Toilet:
De toiletruimte begeeft zich aan de voorzijde van de woning. Het daglicht kan via het vensterraam goed binnenkomen. Het toilet is voorzien van een duoblok en een fonteintje.
De ruimte is afgewerkt met een tegelvloer, deels betegelde wanden en een spuitwerk plafond.

Eerste verdieping

Overloop:
Ruime en prettige overloop waar je elkaar makkelijk kunt passeren. De overloop geeft toegang tot vier slaapkamers, de badkamer en trapopgang naar de tweede-/zolderverdieping.
De ruimte is afgewerkt met een parketvloer, gestuukte wanden en een zachtboard plafond.

Badkamer:
De badkamer is prima van formaat en van alle gemakken voorzien, zoals een douche, wastafel en een duoblok toilet. Deze ruimte laat zich ook uitstekend gebruiken als waskamer of inloopkast. Hoe luxe is dat!
De ruimte is afgewerkt met een tegelvloer, grotendeels betegelde wanden en een spuitwerk plafond.

Slaapkamer 1:
Gezellige hoofdslaapkamer die aan de achterzijde van de woning is gelegen. Deze slaapkamer heeft toegang tot het balkon en een mooi uitzicht op de achtertuin en de molen. Een royaal tweepersoonsbed en kledingkast kunnen hier met gemak in staan.
De ruimte is afgewerkt met een parketvloer, behangen wanden en een zachtboard plafond.

Slaapkamer 2:
Aan de voorzijde treffen we de tweede slaapkamer die ook van prima formaat is. Er is van afstand zicht op een deel van de sportvelden wat het een vrij gevoel geeft. De kamer is goed in te delen met een tweepersoonsbed, kledingkast en bureau.
De ruimte is afgewerkt met een parketvloer, behangen wanden en een zachtboard plafond.

Slaapkamer 3:
Mooie kinderkamer welke aan de voorzijde van de woning is gelegen. Deze kamer is goed om te toveren tot een ruime badkamer met ligbad, douche, toilet en een badkamermeubel met dubbele wastafel. Tijdens het badderen kun je dan genieten van het uitzicht.
De ruimte is afgewerkt met een parketvloer, behangen wanden en een zachtboard plafond.

Slaapkamer 4:
Voor de thuiswerkers is dit de perfecte werkkamer om in alle rust te werken met zicht over de tuin. Zo houdt je werk en privé wat makkelijker gescheiden. Uiteraard is deze kamer ook goed te gebruiken als kinderkamer met bed, kledingkast en bureau.
De ruimte is afgewerkt met een parketvloer, behangen wanden en een zachtboard plafond.

Balkon:
Royaal balkon welke aan de achterzijde en over de volle breedte van de woning is gelegen. Via de hoofdslaapkamer is het balkon te bereiken. Een rustig plek om je even terug te trekken, terwijl je geniet van buiten zijn.

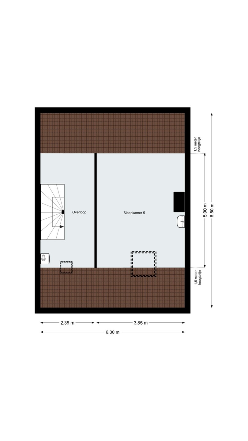
Tweede verdieping

Overloop:
De overloop geeft toegang tot de zolder/-vijfde slaapkamer. Op de overloop tref je de combiketel en is er mogelijkheid tot het opbergen van de nodige spulletjes.
De ruimte is afgewerkt met vloerbedekking, gestuukte wanden en een gipsplaten plafond.

Slaapkamer 5:
Het zal nog lastig zijn wie deze kamer gaat gebruiken. Wat een formaat van een kamer die zich ook uitstekend laat lenen om te verdelen in twee slaapkamers. Met het plaatsen van een dakkapel zijn er vervolgens nog steeds twee slaapkamers van goed formaat. Zoals je leest, volop mogelijkheden met de zolderkamer.
De ruimte is afgewerkt met een vinylvloer, gestuukte wanden en een gipsplaten plafond.

Tuin

Voortuin:
De groene voortuin met sierbestrating geeft veel privacy. Wel zo prettig. Aan de zijkant is de royale oprit die ruimte biedt voor minimaal 2 auto’s. Nooit gedoe waar je je auto kunt parkeren. De voortuin is op het noorden gelegen.

Achtertuin:
Ruime tuin op het zuiden, waar je de hele dag van de zon kunt genieten. Barbecue aan en genieten maar! De tuin is groen aangelegd met plantenbordes en een gazon. Hier kunnen de kinderen heerlijk spelen en ravotten. De achtertuin heeft een achterom en geeft toegang tot de diepe garage. Het royale terras is deels overkapt waardoor je ook met een klein regenbuitje nog steeds buiten kunt zitten. De tuin geeft veel mogelijkheden, denk aan de moestuin, speeltoestellen of een overkapping met buitenkeuken.

Garage:
De vrijstaande garage is extra lang en door het lage muurtje natuurlijk verdeeld in een berging en een parkeerplaats voor de auto. Reuze handig. De garage heeft totaal een lengte van maar liefst 7,65 meter. De garage is voorzien van elektra, water- en afvoeraansluiting en een radiator. Wil je misschien een praktijk of studio aan huis? Dan kan dat hier ook goed worden gerealiseerd.

Kaart

Kenmerken

Overdracht

Referentienummer
06353
Vraagprijs
€ 429.500,- k.k.
Status
Verkocht onder voorbehoud
Aanvaarding
In overleg
Aangeboden sinds
Vrijdag 6 maart 2026

Bouw

Type object
Woonhuis, eengezinswoning, twee onder een kap woning
Soort bouw
Bestaande bouw
Bouwperiode
1972
Dakbedekking
Dakpannen
Type dak
Zadeldak
Isolatievormen
Dakisolatie
Grotendeels dubbel glas
Muurisolatie
Spouwmuren

Oppervlaktes en inhoud

Perceeloppervlakte
312 m²
Woonoppervlakte
140 m²
Woonkameroppervlakte
32,73 m²
Keukenoppervlakte
9,75 m²
Inhoud
485 m³
Oppervlakte externe bergruimte
22 m²

Indeling

Aantal bouwlagen
3
Aantal kamers
6 (waarvan 5 slaapkamers)
Aantal badkamers
1 (en 1 apart toilet)

Locatie

Ligging
Aan rustige weg
In woonwijk
Vrij uitzicht

Tuin

Type
Voortuin
Oriëntering
Noorden
Staat
Prachtig aangelegd
Tuin 2 - Type
Achtertuin
Tuin 2 - Hoofdtuin
Ja
Tuin 2 - Oriëntering
Zuiden
Tuin 2 - Heeft een achterom
Ja
Tuin 2 - Staat
Prachtig aangelegd

Energieverbruik

Energielabel
C

CV ketel

CV ketel
Remeha Quinta
Warmtebron
Gas
Bouwjaar
2008
Combiketel
Ja
Eigendom
Eigendom

Uitrusting

Warm water
CV-ketel
Verwarmingssysteem
Centrale verwarming
Ventilatie methode
Natuurlijke ventilatie
Badkamervoorzieningen
Douche
Toilet
Wastafel
Parkeergelegenheid
Vrijstaande stenen garage
Glasvezelaansluiting aanwezig
Ja
Tuin aanwezig
Ja
Heeft een garage
Ja
Beschikt over een internetverbinding
Ja
Heeft een dakraam
Ja

Kadastrale gegevens

Kadastrale aanduiding
Bergen op Zoom F 5501
Perceeloppervlakte
312 m²
Omvang
Geheel perceel
Eigendomsituatie
Eigen grond

Brochure(s) en overige bijlagen

Brochure - Artemislaan 22 Bergen op Zoom.pdf Download