Verkocht onder voorbehoud:Asterstraat 29, 4613 AE Bergen op Zoom - Foto
Verkocht onder voorbehoud
+41

Asterstraat 29 4613 AE Bergen op Zoom € 249.500,- k.k.

  • Woonhuis
  • 3 kamers
  • 2 slaapkamers
  • 1 badkamer
  • Bouwjaar 1926
  • 286 m² perceeloppervlakte
  • 85 m² gebruiksoppervlakte
  • Gestoffeerd
  • F Energielabel F

Beschrijving

Hoekhuis met karakter en volop mogelijkheden in Bergen op Zoom! Dat is direct waar je aan denkt bij de Asterstraat 29 Bergen op Zoom. Een huis waar je écht iets van jezelf kunt maken? Dit charmante hoekwoning uit 1926 staat te wachten op een nieuwe eigenaar met plannen. Dit huis - in de geliefde wijk Tuinwijk - is geen kant-en-klaar plaatje, maar juist een plek waar je jouw eigen woonstijl en ideeën tot leven kunt brengen. Perfect voor starters of handige doeners die niet terugschrikken voor een beetje werk.

De Asterstraat is zo’n straat waar het dagelijks leven zich gewoon voor je deur afspeelt: kinderen die buiten spelen, buren die elkaar kennen en voorzieningen die verrassend dichtbij zijn. Scholen liggen om de hoek en ook winkels, sportfaciliteiten en het centrum van Bergen op Zoom bereik je in een paar minuten. Praktisch wonen, zonder in te leveren op sfeer.

Huizen uit de jaren ’20 hebben vaak iets bijzonders, en dat voel je hier ook. Tegelijkertijd biedt deze woning het comfort en de ruimte die je nu nodig hebt. Het perceel van 286 m² zorgt voor een opvallend grote achtertuin van ruim 32 meter diep - een zeldzaamheid in deze prijsklasse. Denk aan lange zomeravonden, een eigen moestuin, speelruimte voor kinderen of gewoon een plek om tot rust te komen. Dankzij de hoekligging geniet je bovendien van extra privacy en licht. De houten garage is handig voor de auto of de motor.

De basis is goed, maar de echte kracht van deze woning zit in de mogelijkheden. Zo is een dakopbouw denkbaar, waarmee je eenvoudig extra kamers kunt creëren. Ideaal als je in de toekomst meer ruimte nodig hebt voor een gezin, thuiswerkplek of hobbyruimte. Je koopt hier dus niet alleen een woning voor nu, maar ook voor later.
Ja, er moet nog het een en ander gebeuren. Maar juist dat maakt dit huis interessant. Je kunt alles direct naar eigen smaak aanpakken en meteen slimme keuzes maken op het gebied van isolatie en energiezuinig wonen. Zo bouw je stap voor stap aan een comfortabel en duurzaam thuis. Met de subsidiemogelijkheden is er veel mogelijk. Zo maak je het huis helemaal anno 2026 wat niet alleen goed is voor het milieu, maar ook voor je portemonnee.

Tuinwijk staat bekend als een prettige, gemoedelijke buurt waar mensen zich snel thuis voelen. Je woont hier rustig, maar zit tegelijkertijd zo op de fiets richting het historische centrum of op de uitvalswegen naar omliggende steden. Een fijne combinatie van levendigheid en bereikbaarheid.

Asterstraat 29 Bergen op Zoom is geen standaard woning, maar juist een huis met karakter en toekomst. Zie jij het al voor je hoe dit jouw plek kan worden? Dan is dit hét moment om te komen kijken en de mogelijkheden zelf te ervaren.
Hier zou zomaar jouw volgende hoofdstuk kunnen beginnen. Benieuwd? Kom een kijkje nemen door te bellen en wij begeleiden je graag rond in misschien wel jouw toekomstige thuis!

Pluspunten:
+ Super royale tuin van 32 meter diep!
+ Scholen om de hoek!
+ Rustige en kindvriendelijke buurt!
+ Woning geheel naar eigen smaak te maken!

Indeling

Entree/Hal:
Via de voordeur kon je in de knusse hal die toegang geeft tot de woonkamer en de meterkast. Het nisje wat is ontstaan is een mooi plek om de jassen op te hangen.
De ruimte is afgewerkt met vloerbedekking, structuur geverfde wanden en een gipsplaten plafond.

Woonkamer:
Een mooie woonkamer met veel mogelijkheden. De trap naar de verdiepingsvloer is momenteel vol in het zicht, maar kan doormiddel van het plaatsen van een wand uit het zicht worden onttrokken. De vaste kast is handig voor het opbergen van de nodige spulletjes. Maar kan ook worden verwijderd om de keuken meer te betrekken bij de woonkamer. Het formaat nodigt uit om een leuke leeshoek te creëren en een TV-hoek. Met het plaatsen van een leuke houtkachel, maak je het niet alleen gezellig, maar houdt je ook de gasrekening laag.
De ruimte is afgewerkt met een vinylvloer, structuur geverfde wanden en een gipsplaten plafond.

Keuken:
De keuken is gesloten en in de uitbouw geplaatst. De keuken is flink van formaat en voorzien van veel onder en bovenkastjes en een kunststof werkblad. Via het lichtkoepel kan het daglicht de ruimte goed verlichten. Met het doorbreken van de muur richting de woonkamer kun je hier een droomkeuken kwijt met alle inbouwapparatuur die je maar wenst. De huidige keuken is voorzien van:
+ 4-pits gasfornuis
+ Afzuigkap
+ Dubbele spoelbak
+ Oven
De ruimte is afgewerkt met een tegelvloer, deels betegelde/gestuukte wanden en een houtenschroten plafond.

Eetkamer/bijkeuken:
Achter de keuken tref je een eetkamer die toegang geeft – doormiddel van tuindeuren tot de tuin. Een leuke ruimte om weer te gebruiken voor de eethoek. Wel zo praktisch zo naast de keuken.
De ruimte is afgewerkt met een tegelvloer, gestuukte wanden en een houtenschroten plafond.

Gang:
De gang geeft toegang tot de sanitaire voorzieningen. Een aparte toiletruimte en badkamer. Hier tref je de combiketel en een mogelijkheid voor kastruimte.
De ruimte is afgewerkt met tegelvloer, gestuukte wanden en een gipsplaten plafond.

Toilet:
Ruime toiletruimte welke voorzien is van een duoblok en fonteintje. De ventilatie van de ruimte is doormiddel van het vensterraam.
De ruimte is afgewerkt met een tegelvloer, grotendeels betegelde wanden en een gipsplaten plafond.

Badkamer:
De badkamer is eenvoudige van opzet. Deze ruimte kun je verbouwen tot een bijkeuken waar je de wasmachine in plaatst. Wel zo handig. De huidige badkamer is voorzien van een royale douchecabine en een wastafel. De badkamer wordt geventileerd door een ventersraam en mechanische ventilatie.
De ruimte is afgewerkt met een tegelvloer, grotendeels betegelde wanden en een gipsplaten plafond.

Eerste verdieping

Overloop:
De overloop geeft toegang tot twee slaapkamers en een berging. Mocht je meer slaapkamers wensen? Het is mogelijk om een extra verdieping op de woning te plaatsen.
De ruimte is afgewerkt met een vinylvloer, structuur geverfde wanden en een gipsplaten plafond.

Slaapkamer 1:
De aan de voorzijde gelegen slaapkamer is met ruim 9,5 m2 prima van formaat. Een leuke kinderkamer waar een bed, kast en bureau makkelijk in kunnen worden geplaatst. Werk je veel vanuit huis? Dan kun je deze kamer ook als werkkamer gebruiken.
De ruimte is afgewerkt met een vinylvloer, behangen wanden en een gipsplaten plafond.

Slaapkamer 2:
De hoofdslaapkamer is aan de achterzijde van de woning gesitueerd. Een tweepersoonsbed en kledingkast kun je hier makkelijk in kwijt. Het fijne vrije uitzicht over de tuin is zeker een grote pluspunt.
De ruimte is afgewerkt met een vinylvloer, behangen wanden en een gipsplaten plafond.

Berging:
Tussen de beide slaapkamers is er een praktisch berging. Handig voor de vakantiekoffers en kerstversiering. Het daglicht komt via de lichtkoepel binnen. Deze ruimte kun je ook omtoveren tot een badkamer met douche, wastafelmeubel en toilet.
De ruimte is afgewerkt met gestuukte wanden en een gipsplaten plafond.

Tuin

Achtertuin:
Wat een lengte! Dat mag je zeker zeggen met deze 32 meter diepe achtertuin. Dit is echt het pluspunt van de woning. Ruimte genoeg om je eigen groente te verbouwen, een overkapping voor de barbecue avonden. Het achterom is niet alleen praktisch, maar is dermate breed dat je er ook een oprit hebt voor je auto. In de tuin tref je een houtenberging en een stalenberging. De tuin is noordwestelijk georiënteerd, maar door de lengte is er altijd een plekje in de zon te vinden.

Garage:
De vrijstaande houtengarage (ongeveer 5,9 x 3,45 meter) biedt plaatst voor 1 auto. De garage is voorzien van elektra en een stalen garagedeur.

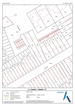
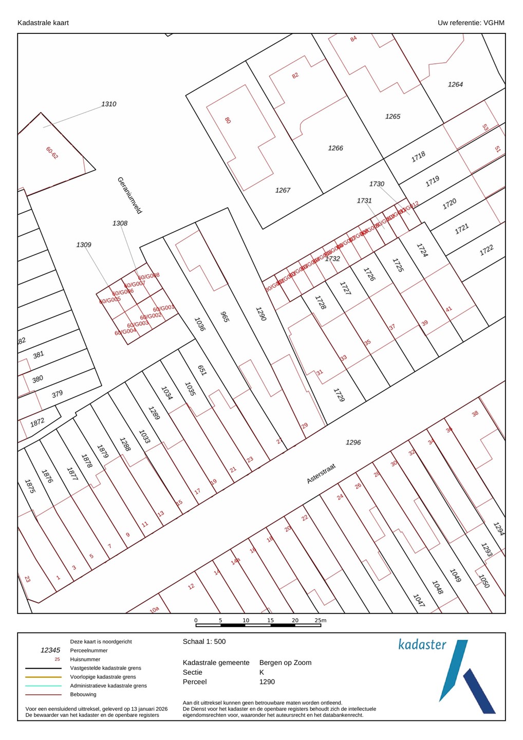
Kaart

Kenmerken

Overdracht

Referentienummer
06355
Vraagprijs
€ 249.500,- k.k.
Inrichting
Ja
Inrichting
Gestoffeerd
Status
Verkocht onder voorbehoud
Aanvaarding
In overleg
Aangeboden sinds
Donderdag 2 april 2026

Bouw

Type object
Woonhuis, eengezinswoning, hoekwoning
Soort bouw
Bestaande bouw
Bouwperiode
1926
Dakbedekking
Bitumen
Type dak
Platdak
Isolatievormen
Dakisolatie
Gedeeltelijk dubbel glas

Oppervlaktes en inhoud

Perceeloppervlakte
286 m²
Woonoppervlakte
85 m²
Woonkameroppervlakte
29,6 m²
Keukenoppervlakte
9,75 m²
Inhoud
220 m³
Oppervlakte externe bergruimte
15 m²

Indeling

Aantal bouwlagen
2
Aantal kamers
3 (waarvan 2 slaapkamers)
Aantal badkamers
1 (en 1 apart toilet)

Locatie

Ligging
Aan rustige weg
In woonwijk
Nabij school

Tuin

Type
Achtertuin
Hoofdtuin
Ja
Oriëntering
Noord west
Heeft een achterom
Ja
Staat
Normaal

Energieverbruik

Energielabel
F

CV ketel

CV ketel
Remeha Avanta
Warmtebron
Gas
Bouwjaar
2006
Combiketel
Ja
Eigendom
Eigendom

Uitrusting

Warm water
CV-ketel
Verwarmingssysteem
Centrale verwarming
Ventilatie methode
Mechanische ventilatie
Natuurlijke ventilatie
Badkamervoorzieningen
Douche
Wastafel
Parkeergelegenheid
Vrijstaande houten garage
Tuin aanwezig
Ja
Heeft een garage
Ja
Heeft schuur/berging
Ja
Heeft een dakraam
Ja
Heeft ventilatie
Ja

Kadastrale gegevens

Kadastrale aanduiding
Bergen op Zoom K 1290
Perceeloppervlakte
286 m²
Omvang
Geheel perceel
Eigendomsituatie
Eigen grond

Brochure(s) en overige bijlagen

Brochure - Asterstraat 29 Bergen op Zoom.pdf Download