Verkocht:Lindebaan 22, 4611 LX Bergen op Zoom - Foto
Verkocht
+19

Lindebaan 22 4611 LX Bergen op Zoom

  • Woonhuis
  • 3 kamers
  • 2 slaapkamers
  • 1 badkamers
  • Bouwjaar 1930
  • 108 m² perceeloppervlakte
  • 100 m² gebruiksoppervlakte
  • Gemeubileerd
  • E Energielabel E

Beschrijving

Leuke eengezinswoning voor de startende huizenzoekers

Welkom bij Lindebaan 22 in het bruisende centrum van Bergen op Zoom! Dit gezellige woonhuis uit 1930 is perfect voor starters die op zoek zijn naar een woning met karakter. Met een woonoppervlakte van circa 100 m2 heb je hier alle ruimte om jouw eigen stempel te drukken en van deze plek echt jouw thuis te maken.

Stap binnen in de ruime woonkamer die is verdeeld in twee gedeeltes, ideaal voor gezellige avonden met vrienden of om lekker te relaxen na een lange dag. Als hobbykok weet jij wel raad met de ruime gesloten keuken. Plaats hier met de tijd je eigen droomkeuken. De 25 m2 grote patio is een heerlijke buitenruimte waar je kunt genieten van een kopje koffie in de ochtendzon of een gezellige barbecue in de avond.
Op de verdiepingsvloer tref je twee prima slaapkamers aan en een XXL-badkamer met een aparte douche en ligbad (Whirpool). Aan de vakantiekoffers en kerstspullen is ook gedacht want die kun je allemaal kwijt op de ruime (berg)zolder.

Met een energielabel E is er zeker ruimte voor verbetering als het gaat om duurzaamheid. Gelukkig biedt dit huis jou de mogelijkheid om het helemaal naar jouw eigen smaak aan te pakken. Renoveer de woning naar moderne standaarden en creëer zo jouw droomhuis in het hart van de stad. Handig is dat de woning al wel is voorzien van rolluiken.

Deze woning aan Lindebaan 22 is ideaal voor starters die op zoek zijn naar een plekje om echt hun eigen te maken. Met een vleugje creativiteit en wat (licht) kluswerk transformeer je deze woning in een knusse haven waar je vele jaren met plezier zult wonen.

Interesse in dit leuke woonhuis in het centrum van Bergen op Zoom? Kom snel een kijkje nemen en stel jezelf voor hoe je hier zou kunnen wonen. Dit is jouw kans om een betaalbare woning te vinden die je helemaal naar jouw eigen wensen kunt inrichten. Wacht niet langer en neem contact met ons op voor een bezichtiging!

Pluspunten:
+ Royale en zonnige tuin!
+ Echte (her)starterswoning!
+ Winkels en restaurants om de hoek!

Indeling

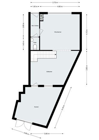
Entree/Hal:
Prima entree van de woning waar voldoende ruimte is om de jassen op te hangen. De hal geeft toegang tot de woonkamer en het toilet.
De ruimte is afgewerkt met vloerbedekking, gestuukte wanden en een gipsplaten plafond.

Woonkamer:
De gezellige woonkamer is aan de voorzijde van de woning gelegen. Een royale zithoek kan er makkelijk worden geplaatst. Super handig is de vaste kast waar de spelletjes en fotolijsten allemaal hun plekje kunnen vinden. De woonkamer staat in open verbinding met de eetkamer en de geeft toegang tot de meterkast.
De ruimte is afgewerkt met een gietvloer, gestuukte wanden en een gipsplaten plafond.

Eetkamer:
Doordat de woonkamer een soort van in tweeën is gedeeld, is deze eetkamer ontstaan. Een ruime eethoek kan hier met gemak in worden geplaatst waar je met vrienden en familie lekker kunt genieten van een dinerparty of spelletjesavonden. Via de eetkamer is er toegang tot de keuken en tref je de trapopgang naar de verdiepingsvloer.
De ruimte is afgewerkt met een gietvloer, gestuukte wanden en een gipsplaten plafond.

Keuken:
De gesloten keuken is ruim van opzet en door de schuine wanden ook speels te noemen. Er is veel werkruimte aan het kunststofaanrechtblad en de keukenkastje geven veel opbergruimte voor de pannen, het servies en de boodschappen voorraad. Een koffiebarretje ontbreekt ook niet aan deze kleurrijke keuken. Via de lichtkoepel kom het daglicht goed binnen wat de ruimte extra fijn doet aanvoelen en via de openslaande deuren is er een open verbinding met de tuin.
De keuken is voorzien van:
+ 4-pits inductiekookplaat
+ Afzuigkap
+ Koelkast
+ Magnetron (los)
+ Oven
+ Vaatwasser
+ Vriezer
De ruimte is afgewerkt met een tegelvloer, gestuukte wanden en een gestuukt plafond.

Toilet:
Prima toilet die opvallend diep is. Mensen met lange benen kunnen de benen hier rustig strekken. Het toilet is voorzien van een duoblok-wc en een fonteintje.
De ruimte is afgewerkt met een tegelvloer, betegelde wanden en een gipsplaten plafond.

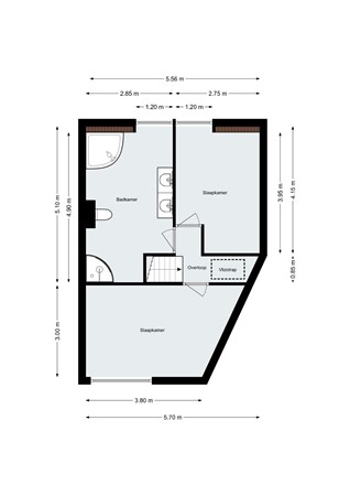
Eerste verdieping

Overloop:
De overloop geeft toegang tot de beide slaapkamers, de badkamer en via de vlizotrap tot de bergzolder.
De ruimte is afgewerkt met een laminaatvloer, gestuukte wanden en een gipsplaten plafond.

Badkamer:
Zéér royale badkamer welke aan de voorzijde van de woning is gelegen. Via het dakkapel kan de ruimte goed worden geventileerd. De ruimte zorgt dat je hier een mooie luxe badkamer kunt creëren. Handig punt is dat er ook ruimte is voor het plaatsen van de wasmachine. De huidige badkamer is zeker nog in prima staat en voorzien van:
+ Badkamermeubel met dubbel wastafel
+ Douchecabine
+ Wandcloset
+ Whirlpool
De ruimte is afgewerkt met een tegelvloer, betegelde wanden en een MDF-panelen plafond.

Slaapkamer 1:
De hoofdslaapkamer is aan de achterzijde van de woning gelegen en is ruim van opzet. Een tweepersoonsbed en kledingkast kun je er met gemak in kwijt. De aanwezige nis zorgt voor extra opbergruimte voor kleding.
De ruimte is afgewerkt met een laminaatvloer, gestuukte wanden en een gipsplaten plafond.

Slaapkamer 2:
Gezellige slaapkamer, welke aan de voorzijde van de woning is gelegen. De kamer laat zich op natuurlijke wijze indelen. In de nis plaats je een royale kledingkast. Er blijft op die manier volop plek voor een tweepersoonsbed.
De ruimte is afgewerkt met een laminaatvloer, gestuukte wanden en een gipsplaten plafond.

Tweede verdieping

Bergzolder:
Wat een ruimte. Met een stahoogte van 2 meter zou je hier nog een extra kamer kunnen creëren, maar waarschijnlijk ga je de tweede verdieping gebruiken voor de vakantiekoffers, kerstversiering en wat al niet meer je wilt bewaren. De combiketel hangt ook op de zolder.

Tuin

Patiotuin:
De L-vormige tuin is voor stadse begrippen ruim te noemen. Ondanks de oostelijke oriëntatie kan de zon vrijwel de gehele dag de tuin bereiken. De huidige tuin is onderhoudsvriendelijk aangelegd. Met een beetje aandacht kun je er hier een leuke plek van maken waar je in de zomermaanden met familie en/of vrienden kunt genieten van een heerlijke barbecue. Plantenbordes, een nieuwe tuinberging met een overkapping het is er allemaal mogelijk.

Kaart

Kenmerken

Overdracht

Referentienummer
06324
Vraagprijs
€ 279.000,- k.k.
Inrichting
Ja
Inrichting
Gemeubileerd
Status
Verkocht
Aanvaarding
In overleg
Aangeboden sinds
Donderdag 12 juni 2025

Bouw

Type object
Woonhuis, eengezinswoning, tussenwoning
Soort bouw
Bestaande bouw
Bouwperiode
1930
Dakbedekking
Dakpannen
Type dak
Zadeldak
Isolatievormen
Dubbel glas

Oppervlaktes en inhoud

Perceeloppervlakte
108 m²
Woonoppervlakte
100 m²
Woonkameroppervlakte
45,6 m²
Keukenoppervlakte
13,3 m²
Inhoud
345 m³

Indeling

Aantal bouwlagen
3
Aantal kamers
3 (waarvan 2 slaapkamers)
Aantal badkamers
1 (en 1 apart toilet)

Locatie

Ligging
In centrum

Tuin

Type
Patio
Hoofdtuin
Ja
Oriëntering
Oosten
Staat
Normaal

Energieverbruik

Energielabel
E

Uitrusting

Ventilatie methode
Natuurlijke ventilatie
Keukenvoorzieningen
Inbouwapparatuur
Badkamervoorzieningen
Douche
Dubbele wastafel
Toilet
Wastafelmeubel
Whirlpool
Tuin aanwezig
Ja
Heeft rolluiken
Ja
Heeft een dakraam
Ja

Kadastrale gegevens

Kadastrale aanduiding
Bergen op Zoom G 6182
Perceeloppervlakte
108 m²
Omvang
Geheel perceel
Eigendomsituatie
Eigen grond

Media

Plattegronden

Brochure(s) en overige bijlagen

Brochure - Lindebaan 22 Bergen op Zoom.pdf Download